横浜 相鉄線「三ツ境」駅徒歩9分 新築一戸建 販売済
土地162.26㎡〜180.00㎡ 建物104.53㎡〜108.68㎡ 各4LDK
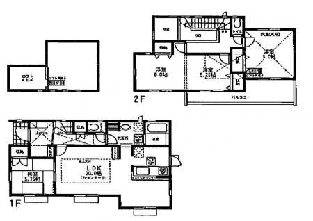
カースペース2台有、住環境良好な閑静な住宅街、18帖〜20帖の開放感あるLDKです、ロフトのある使い易い間取りです 全2棟今回販売2棟













◎お気軽にお問い合わせして下さい!!

TEL:045-364-2000
FAX:045-364-2002
Eーmail:info@comfyhome.co.jp











 
■物件概要
所在地 横浜市旭区笹野台4丁目
交通 相鉄線「三ツ境」駅徒歩9分
販売価格 販売済
間取 各4LDK
土地 162.26㎡〜180.00㎡
建物 104.53㎡〜108.68㎡
完成/入居予定 平成28年5月入居予定
構造 木造
備考
取引形態 媒介