横浜 相鉄線「希望ヶ丘」駅徒歩11分 新築一戸建 販売済
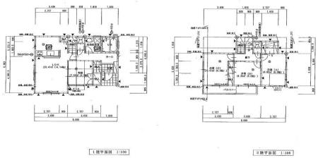
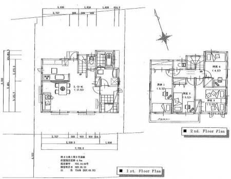
土地100.09㎡〜127.76㎡ 建物87.58㎡〜91.57㎡ 各各4LDK
全頭カースペース1〜2台、南道路に付き日当たりも良好です、全7棟の明るい多棟現場です、建物はお洒落な内外装です、No.5〜7号棟は平成27年8月入居予定です















◎お気軽にお問い合わせして下さい!!

TEL:045-364-2000
FAX:045-364-2002
Eーmail:info@comfyhome.co.jp











 
■物件概要
所在地 横浜市瀬谷区阿久和東1丁目
交通 相鉄線「希望ヶ丘」駅徒歩11分
販売価格 販売済
間取 各各4LDK
土地 100.09㎡〜127.76㎡
建物 87.58㎡〜91.57㎡
完成/入居予定 平成27年6月完成済
構造 木造
備考
取引形態 媒介