横浜 相鉄線「希望ヶ丘」駅徒歩17分 新築一戸建 販売済
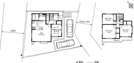
土地146.96㎡ 建物94.60㎡ 4LDK
カースペース2台有、東南道路に付陽当良好、東南側・北西側の両面道路に付開放感があります、敷地約44坪の広さはお庭もあります









◎お気軽にお問い合わせして下さい!!

TEL:045-364-2000
FAX:045-364-2002
Eーmail:info@comfyhome.co.jp





 
■物件概要
所在地 横浜市旭区中尾2丁目
交通 相鉄線「希望ヶ丘」駅徒歩17分
販売価格 販売済
間取 4LDK
土地 146.96㎡
建物 94.60㎡
完成/入居予定 平成26年4月入居予定
備考
取引形態 媒介